kód: 216800
eladó lakás - Fonyód

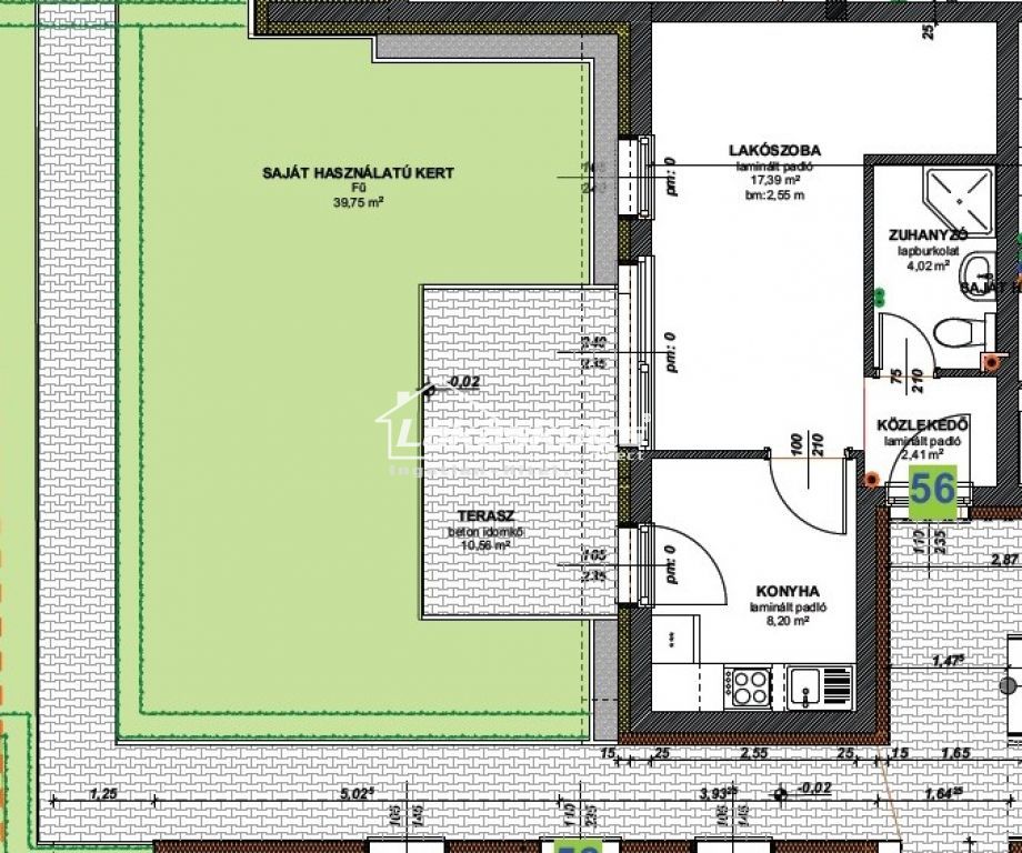
méret: 32.02 nm (br. 37.3 nm)
állapot: új építésű
építés anyaga: tégla
emelet: földszint

ár: 59.866.500 Ft

A Lakáskulcs-direct Ingatlan és Hiteliroda kínálatából megvásárolható:

Fonyód kedvelt részén, kellemes környezetben, a Balaton parttól kb. 100 méterre épülő, kiváló minőségű társasház földszintjén 1 szobás 37,3 nm-es kertkapcsolatos ( kert: 39,75 nm)  lakás eladó 2027 év eleji tervezett átadással.

- a lakáshoz felszíni beálló valamint garázs vásárolható.

- a remek lokáció, a Balatoni környezet, a kiváló tájolás, a minőségi és modern lakások és az elsőrangú közlekedés egyszerre biztosítják a ház apartmanjainak értékállóságát.

- a társasház lakásai nemcsak állandó otthonnak, nyaralónak, de kiadásra és befektetési célra is tökéletesen megfelelnek.

További információ: 

Kovács-Borsányi Lívia

+36 (20) 579 6779

Siófok Lakáskulcs-direct Ingatlaniroda

8600 Siófok, Beszédes József sétány 83. földszint 1.